
福知山市|築40年の家暮らしやすく1階をリフォーム
| 工事箇所 | |
|---|---|
| 間取り | 1F 1DK |
| 施工費用 | 000万円(税込) |
| 工事期間 | 2ヶ月半 |
| 家族構成 | 2人 |
| 採用機器 | システムバス TOTOサザナ1220 パティオベージュ システムキッチン クリナップ ラクエラ2550 グラセウッドグレージュ 洗面化粧台 パナソニック シーライン チェリー柄 サッシ LIXIL インプラス リプラス 床 東洋 匠 ウォールナット 可動式間仕切り タチカワブラインド プレイススウィング |
| テイスト | ナチュラル |
| 悩み・困り事 | 部屋が欲しい 雨漏れがする 見た目をきれいにしたい 故障かな? 狭い 寒い |
家づくりのご要望・動機
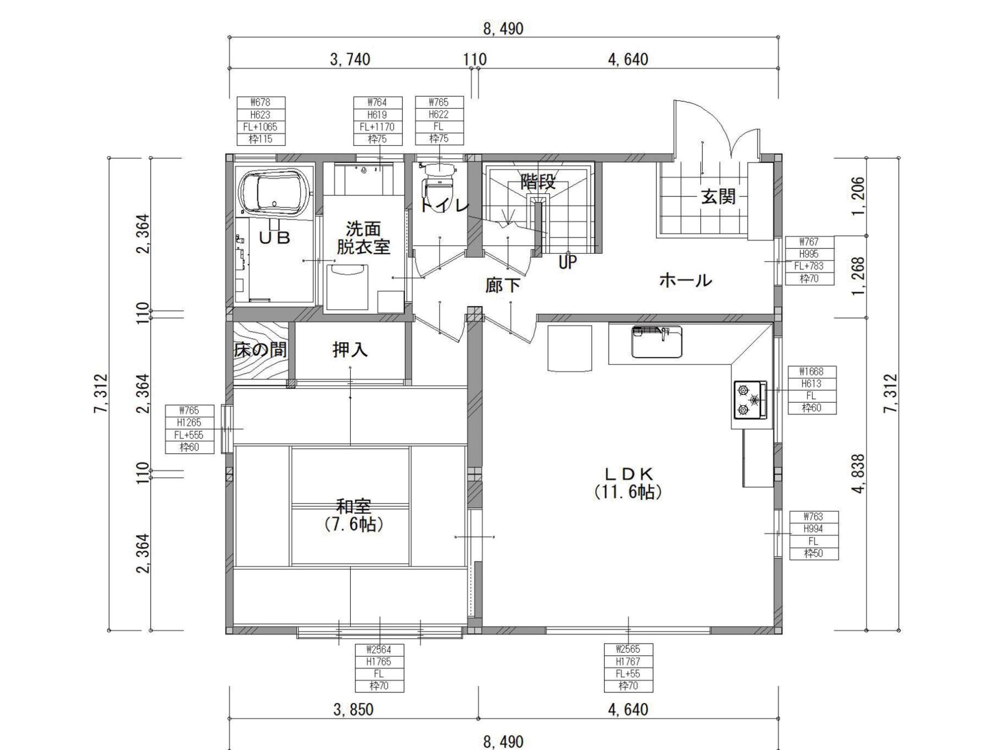
和室はいらないから、広いLDKにしたい。
セキスイハイムの住宅だが、他社ではリフォーム工事を断られた。
躯体は触りたくない。
断熱性が気になる。
詳細画像
※クリックで画像拡大します。
工事前
※クリックで画像拡大します。
担当者のコメント
窓は全て内窓かカバー工法です。暖かくなったと感想をいただけました。
今回和室をなくし和室だった空間と今までのLDKを繋げ更に広い空間になりました。
ダイニングとリビング部分を仕切れるように可動式の間仕切りを取付ました。
高さ、広さも対応域が幅広いので大開口でも可動間仕切りが可能です。
私が担当しました

神戸生まれの明石育ちです。
好きなことはライブ・旅行・ショッピング。
お客様と一緒に素敵な住まいづくりをしていければと思います!!
よろしくお願いします。
































