
福知山市|老舗酒蔵の実家を活かした店舗併用住宅リフォーム
| 工事箇所 | |
|---|---|
| 間取り | - |
| 施工費用 | 1565.3万円(税込) |
| 工事期間 | 2.5か月 |
| 家族構成 | 2人 |
| 採用機器 | システムキッチン クリナップ ラクエラ システムバス TOTO サザナ 洗面化粧台、トイレは再利用 |
| テイスト | モダン |
| 悩み・困り事 | 部屋が欲しい 見た目をきれいにしたい 古い 汚れが気になる |
家づくりのご要望・動機
両親が他界したことで福知山に戻って稼業を継ぐことになったのでリフォームしたい。
住むには寒いので窓を取替えて断熱がしたい。
水廻りを新しくしたい。
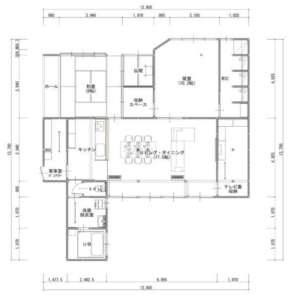
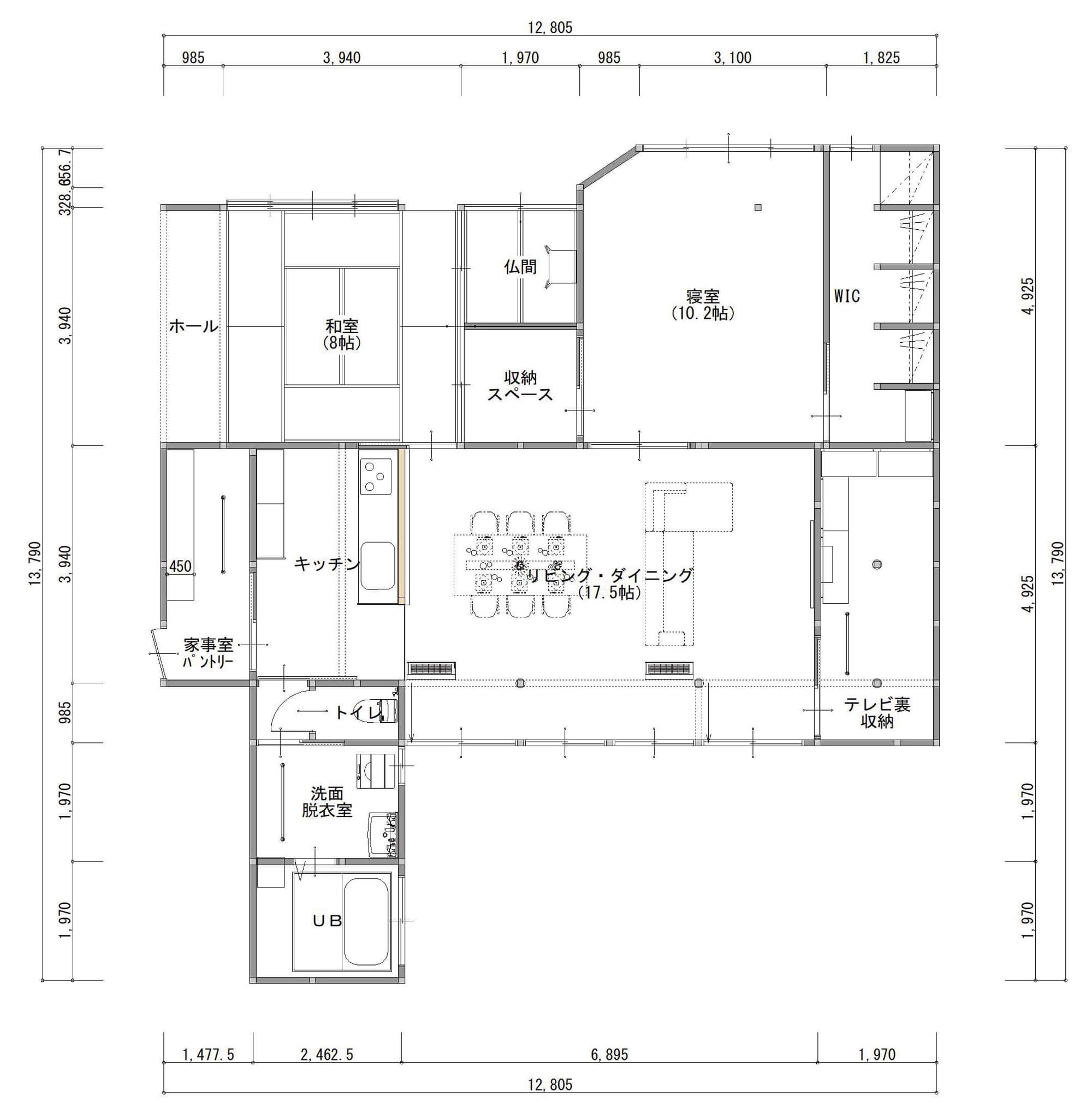
詳細画像
※クリックで画像拡大します。
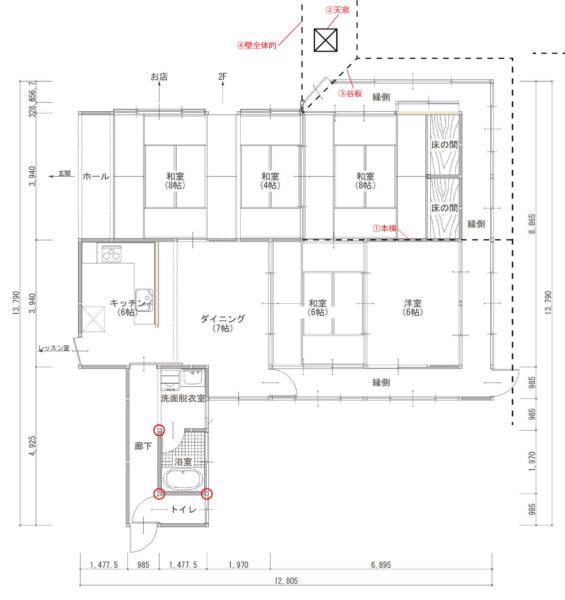
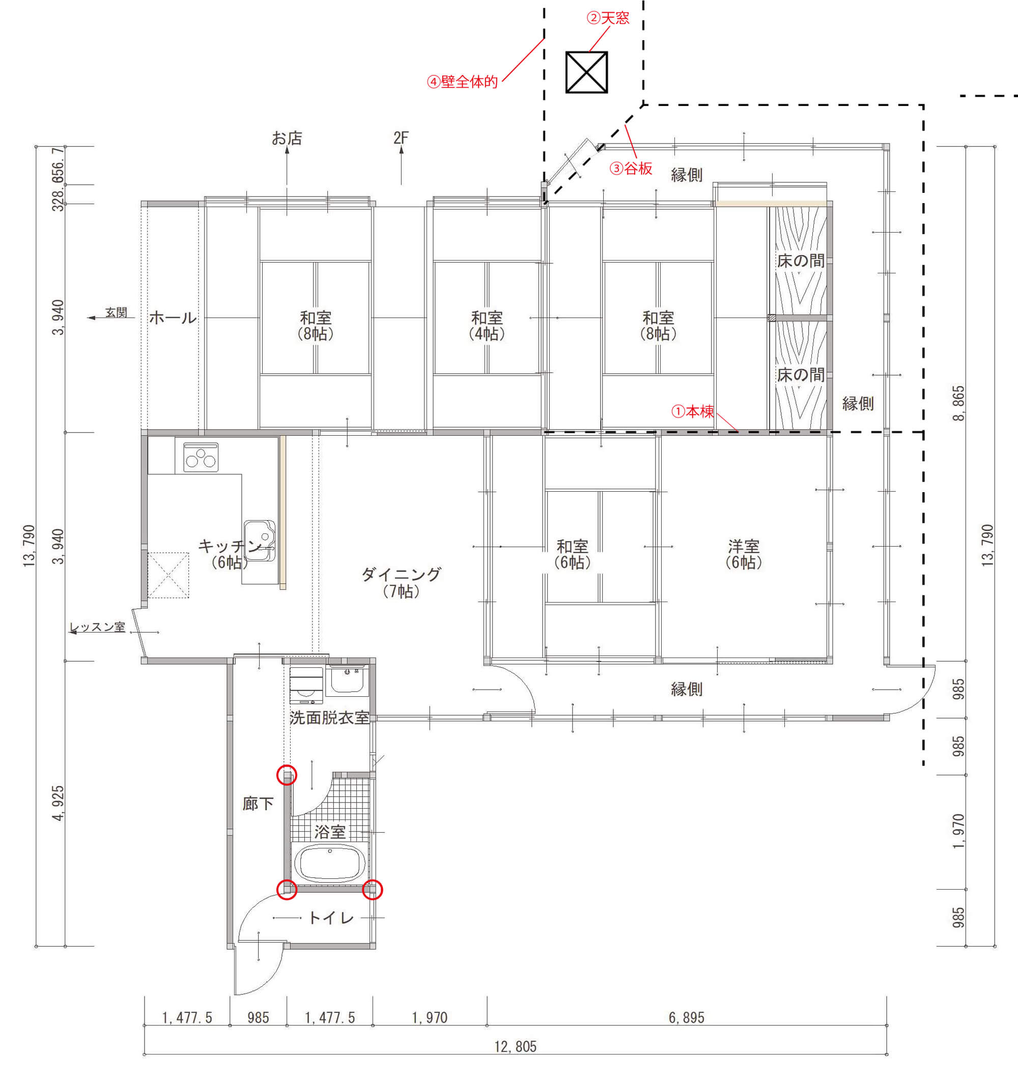
工事前
※クリックで画像拡大します。
担当者のコメント
大阪で暮らしていたご夫婦が、奥様のご実家である創業300年の造り酒屋を継ぐため、福知山に戻られました。
築100年を超える古民家には、樹齢100年を超える松をはじめとする立派なお庭が残っており、
その景観を生かしつつ「暗いリビングを明るくしたい」というご要望をいただきました。
改修では住みやすい間取りに工夫し、室内から四季折々の庭の景色を楽しめる開放的なリビングへとリフォームしました。
歴史ある酒屋とともに、これからも地域に根差した豊かな暮らしを送っていただければと思います。
私が担当しました

福知山市出身福知山育ちの上田です。
地元を笑顔にできるように工事したいと思っています!
まだまだ若輩者ですが精一杯がんばります!
よろしくおねがいします!






































