
福知山市 | 両親のための介護リフォーム 段差解消で安心な実家に
| 工事箇所 | |
|---|---|
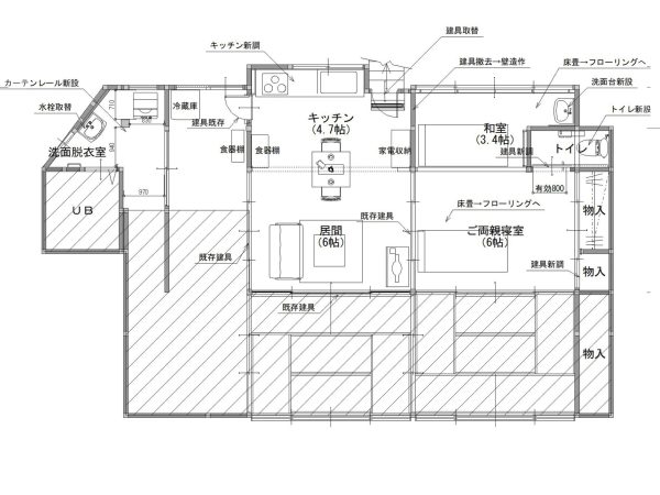
| 間取り | 3LDK |
| 施工費用 | 501.9万円(税込) |
| 工事期間 | 1ヶ月 |
| 家族構成 | 3人 |
| 採用機器 | キッチン クリナップ ラクエラ間口2600 トイレ TOTO ピュアレストQR 洗面台 クリナップ BGA |
| テイスト | |
| 悩み・困り事 | 部屋が欲しい 見た目をきれいにしたい 狭い 寒い 床がブカブカ 汚れが気になる 介護保険適用 |
家づくりのご要望・動機
台所が汚い。
両親のためにキレイにしたい。
段差をなるべく少なくしたい。
寝室の近くにトイレをつくりたい。
詳細画像
※クリックで画像拡大します。
工事前
※クリックで画像拡大します。
担当者のコメント
今回の工事では、お客様の寝室近くにトイレを新設するため、押入れを活用してリフォームを行いました。
壁は調湿効果が期待できる珪藻土仕上げ、天井と壁の一部にはシナベニア仕上げを採用するなど、息子様のこだわりを細部まで反映した空間づくりを心がけました。
遠方にお住まいの息子様へは、毎日メールで進捗状況をご報告することで安心していただけるよう努めました。
また、介護保険も活用し、負担を軽減しながら工事を進めました。
完成後には、お客様から「イメージ通りです」とのお言葉をいただき、大変満足していただけたことが私たちにとっても大きな喜びです。
暮らしやすさとお客様の理想を叶えるお手伝いができ、嬉しく思います。
私が担当しました

神戸生まれの明石育ちです。
好きなことはライブ・旅行・ショッピング。
お客様と一緒に素敵な住まいづくりをしていければと思います!!
よろしくお願いします。





























