
薪ストーブのあるリビングに憧れて 仲良し家族が集う家
| 工事箇所 | |
|---|---|
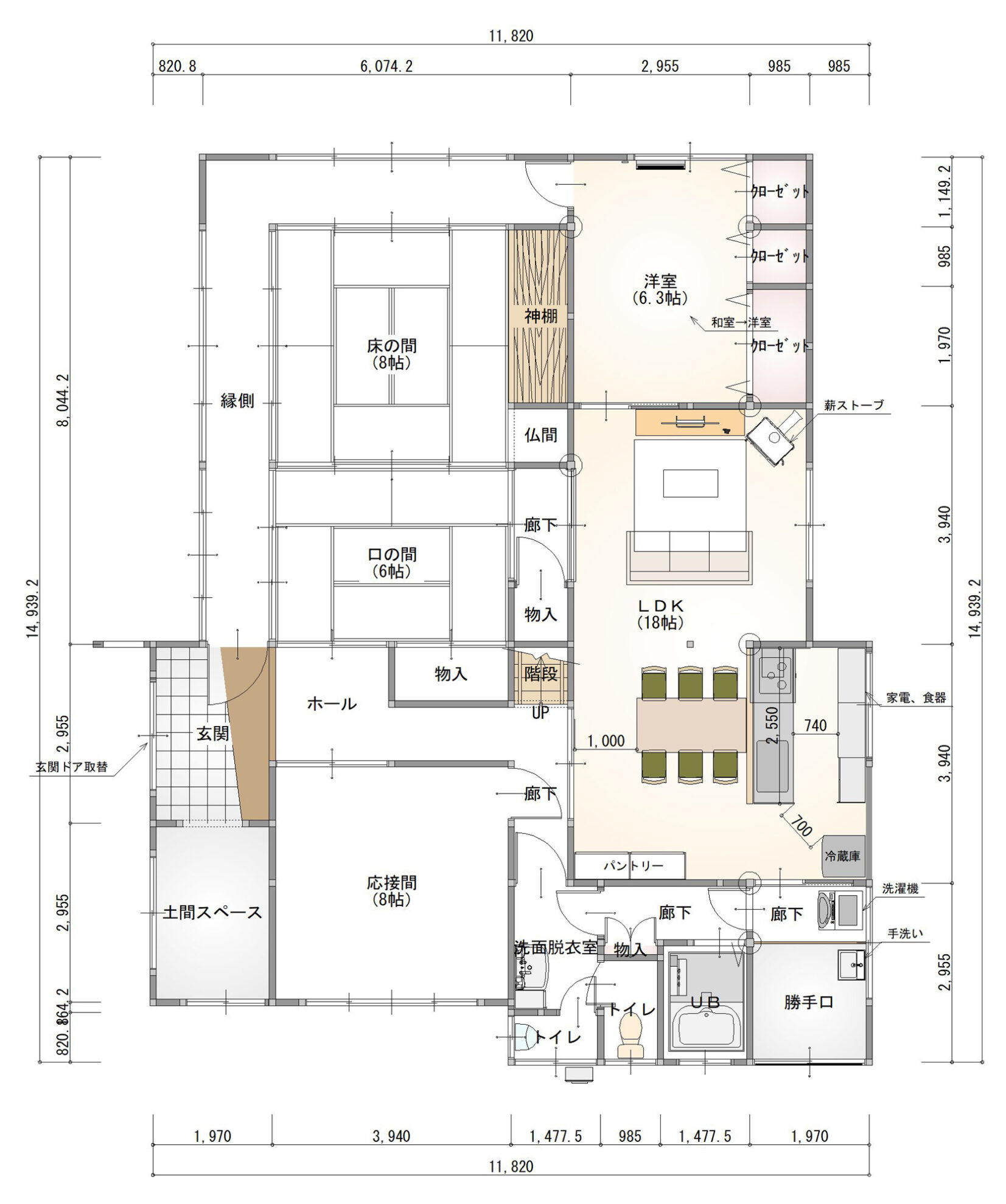
| 間取り | 5DK→4LDK |
| 施工費用 | 1133万円(税込) |
| 工事期間 | 3ヶ月 |
| 家族構成 | 3人 |
| 採用機器 | システムキッチン:クリナップ ラクエラ 2550 扉:トリュフメープル 天板:アクリストン/クレマホワイト フロア :東洋テックス E100バーチ 室内建具 :LIXIL ラシッサS 勝手口手洗い器 :カクダイ 壁掛洗面器 薪ストーブ :バーモントキャスティングス アスペンC3 |
| テイスト | カフェ風 ナチュラル |
| 悩み・困り事 | 寒い 古い 床がブカブカ 汚れが気になる |
家づくりのご要望・動機
・台所の床がブカブカするのでなんとかしたい。
・台所と居間(和室)を繋げてLDKにしたい。
・薪ストーブを置きたい。薪ストーブの周りは石を使いたい。
・室内に木を使って、きを見せる部屋にしたい。
・廊下の段差をなくしたい。
詳細画像
※クリックで画像拡大します。
工事前
※クリックで画像拡大します。
工事中
※クリックで画像拡大します。
担当者のコメント
リビングを改修するにあたって、木を使いたい! 薪ストーブを置きたい! ストーブの裏は石がいい!とずっと憧れておられた空間を一緒につくることができました。
打合せから工事まで積極的のご要望をお話して頂いてとっても楽しく進めることができました。
木を使いたいというご希望でしたので、リビングの天井は付け梁と杉の羽目板で天井高も高くとってます。
夏の完成でしたので、冬に薪ストーブの火入れ式をされるのが楽しみです。
私が担当しました

神戸生まれの明石育ちです。
好きなことはライブ・旅行・ショッピング。
お客様と一緒に素敵な住まいづくりをしていければと思います!!
よろしくお願いします。

















































