
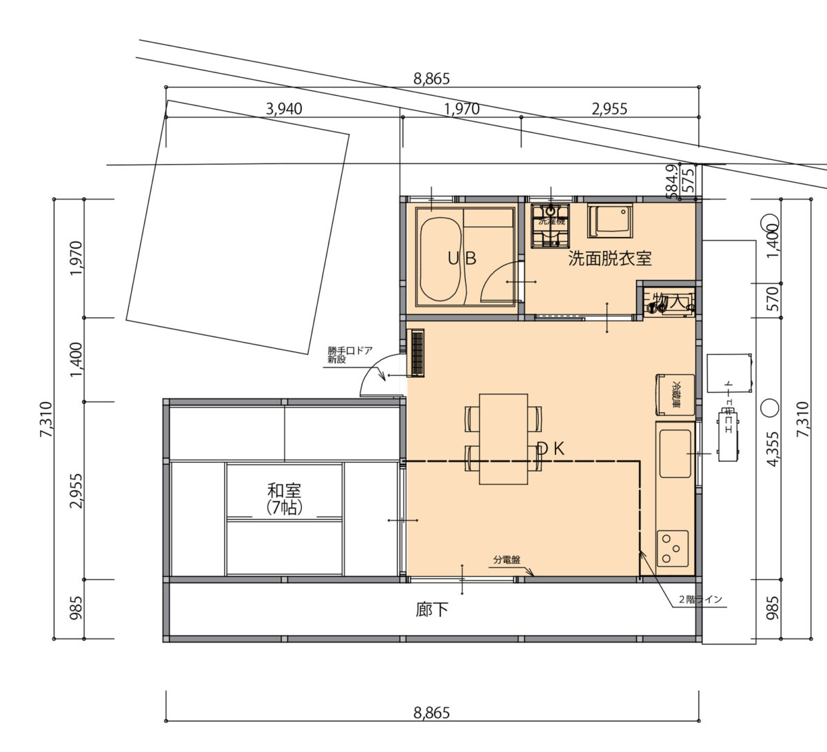
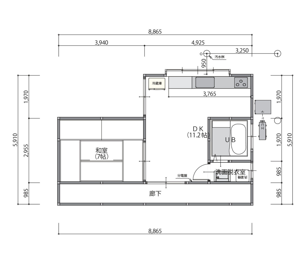
ダイニングキッチン&システムバス 増築をして快適な水まわりに
| 工事箇所 | |
|---|---|
| 間取り | - |
| 施工費用 | 636.9万円(税込) |
| 工事期間 | 1ヵ月半 |
| 家族構成 | 3人 |
| 採用機器 | キッチン:タカラスタンダード エーデル 浴室:クリナップ アクリア 洗面化粧台:クリナップ S フローリング:ニドムエコ ノーチェ 建具:LIXIL ラシッサS サッシ:LIXIL サーモスⅡH |
家づくりのご要望・動機
工事させていただいたきっかけは、奥様から
キッチンの窓が大きく西日がきついため、窓を小さくするか
何か対策方法はないかな・・との事でお伺いさせていただいた事がきっかけでした。
お伺いさせていただいた際、ご主人から浴室とキッチンの位置を変えたいとの
ご提案で、今回増築させていただき、キッチン、浴室・脱衣室の位置を
変えさせていただきました。
詳細画像
※クリックで画像拡大します。
担当者のコメント
ご主人と、奥様のお好みのテイストを上手練りこんだ空間に仕上がりました。






















