
丹波篠山市|住み継ぐ 築50年住宅の断熱&間取りリフォーム
| 工事箇所 | |
|---|---|
| 間取り | - |
| 施工費用 | 1738万円(税込) |
| 工事期間 | 5か月 |
| 家族構成 | 3人 |
| 採用機器 | システムキッチン:タカラスタンダード トレーシア 洗面化粧台:タカラスタンダード オンディーヌ トイレ:TOTO GG1 フローリング ラシッサS 玄関ドア:LIXIL グランデル2 156型 フェンス:LIXIL フェンスAB YL2型 門扉:LIXIL 門扉AB YM1型 |
家づくりのご要望・動機
実家を改装して、生活しやすいようにしたい。
生活動線をなるべくバリアフリーにし、日の当たる部屋にリビングを作りたい。
寝室も設けたい。
水廻りの機器を入れ替えたい。
トイレを和式から洋式にしたい。
詳細画像
※クリックで画像拡大します。
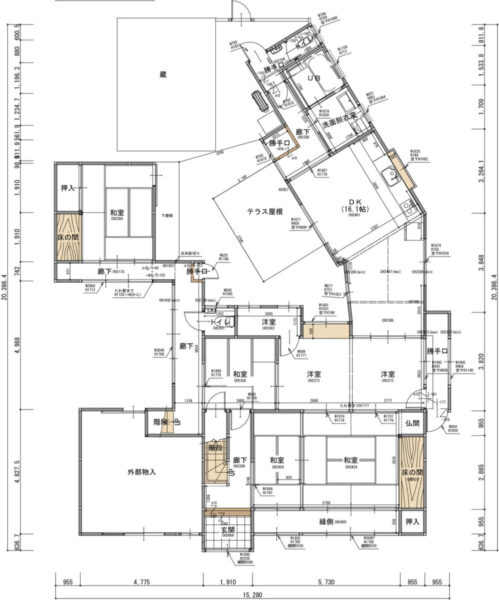
工事前
※クリックで画像拡大します。
担当者のコメント
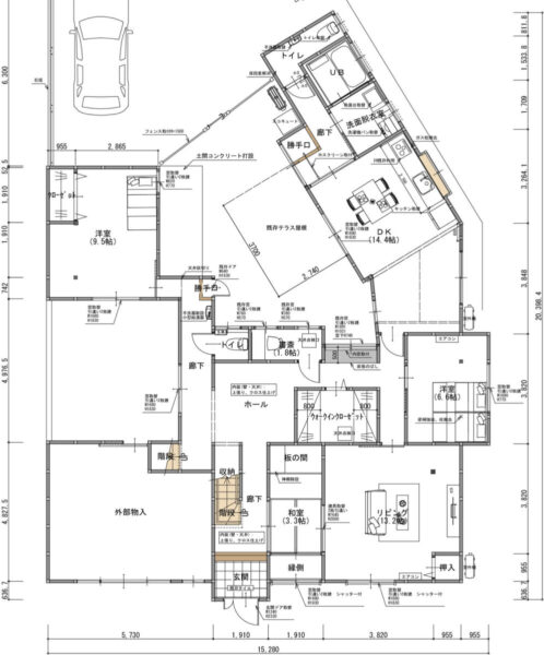
元々の和室や洋室を改装し、リビングと寝室・ウォークインクローゼットなどを作らせて頂きました。
以前は部屋を通らないと各部屋に行けませんでしたが、あえて廊下を設けて、プライバシーの確保を行いました。
キッチンや洗面台等も入替し、トイレは手洗いを別に設けた洋式を作らせて頂きました。
サッシも高断熱の物に取り替えて、断熱性を向上させました。
車庫と蔵も解体し、新たに勝手口に繋がる駐車スペースも確保しました。
私が担当しました

福知山店から篠山店に異動して来ました。
趣味はバイクで、時間があればツーリングに行ったりしています。
丹波篠山市や丹波市のお客様にも喜んで頂けるリフォームが出来ればと思います。
心機一転、頑張ります!





































