
丹波篠山市|古民家リノベ水まわり動線計画で暮らしやすい家へ
| 工事箇所 | |
|---|---|
| 間取り | - |
| 施工費用 | 809.6万円(税込) |
| 工事期間 | 2ヶ月 |
| 家族構成 | 2人 |
| 採用機器 | システムキッチン:タカラスタンダード リフィット システムバス:TOTO サザナ1216 洗面化粧台:クリナップ BGA 750W トイレ:TOTO ピュアレストQR+ウォシュレットSS1 ガス給湯器:ノーリツ 24号 オートタイプ フローリング:丸玉木材 ニドムエコ |
家づくりのご要望・動機
段差が多いので、段差をなくしたい。
トイレが遠いので、生活スペースの近くにしたい。
浴室・脱衣場に行くまでに土間に降りなければいけないので、靴を履き脱ぎしなくて行けるようにしたい。
詳細画像
※クリックで画像拡大します。
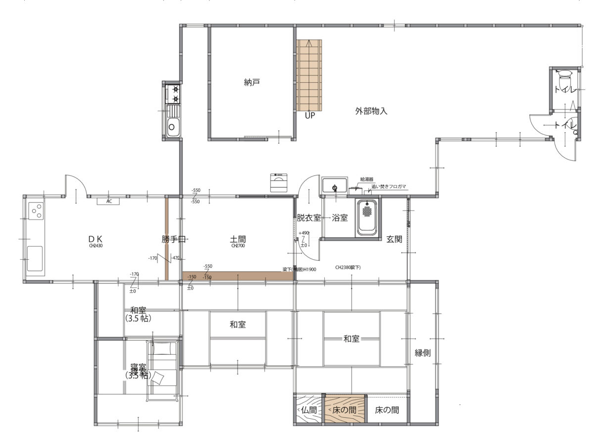
工事前
※クリックで画像拡大します。
担当者のコメント
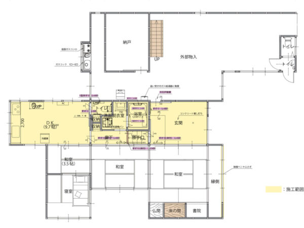
各水廻りに行くまでに段差が多かったので、水廻りを固めて、段差なく生活できるようにさせて頂きました。
ステップのある部分や通路には手すりを取り付けて安全性を高めました。
余裕のできたスペースには収納を設けさせていただきました。
私が担当しました

福知山店から篠山店に異動して来ました。
趣味はバイクで、時間があればツーリングに行ったりしています。
丹波篠山市や丹波市のお客様にも喜んで頂けるリフォームが出来ればと思います。
心機一転、頑張ります!























