
丹波市|古くなった離れを再生!全面リフォームで明るく暮らしやすく
| 工事箇所 | |
|---|---|
| 間取り | 2DK |
| 施工費用 | 1320万円(税込) |
| 工事期間 | 3ヶ月 |
| 家族構成 | 2人 |
| 採用機器 | SK タカラスタンダード トレーシア UB タカラスタンダード ぴったりサイズ グランスパ 洗面 タカラスタンダード ファミーユ トイレ TOTO GG1 建材 LIXIL ラシッサD |
家づくりのご要望・動機
使っていない離れをきれいにして生活拠点を移したい。
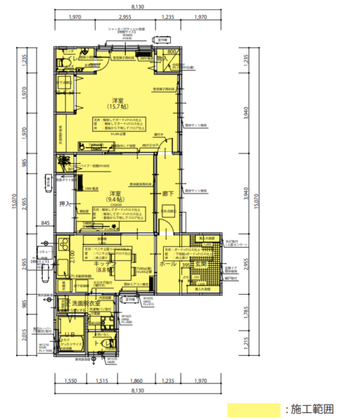
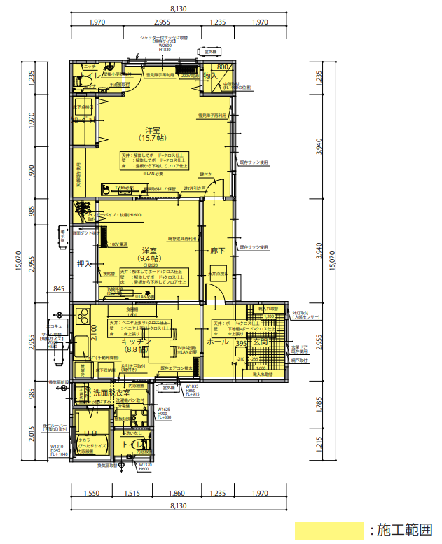
詳細画像
※クリックで画像拡大します。
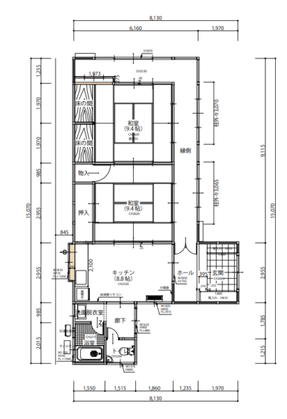
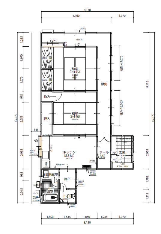
工事前
※クリックで画像拡大します。
担当者のコメント
今回の工事では、長く使われずにいた“離れ”をお客様のお住まいとして再生するというテーマで進めさせていただきました。
もとあった障子や雪見障子などできる限り再利用しつつ、全体を白を基調にして明るく、そして快適に仕上げました。
お客様から「こんなに明るくなるとは思っていませんでした」とのお声もいただき、私も喜びを感じています。
これからも、外構・水廻り・使わなくなったスペースの活用など、住まいのお悩みに幅広く対応いたします。
私が担当しました

お部屋のリフォーム・水回り・外構など日々知識を増やしております。
趣味はバイクで遠出することです。丹波篠山の地を颯爽とかけめぐりたいです。
後輩がバイクの免許を取るということで、ツーリング出るのを楽しみにしています。
































